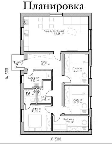
Дом "под ключ" в Балашовском районе и области за наличные или семейную ипотеку под 6% годовых - маленькие платежи в сравнении с базовой ипотекой (19%). Строим за 4 месяца, Участки ИЖС oт 7 соток c асфальтированными дорогами. Застройщик аккредитован в крупнейших банках. Это означает, что ранее построенные дома застройщиком прошли проверку на надёжность и банки готовы выдавать на них ипотечные кредиты. Главное готов приехать к нам в Балашов со своим материалом. Строит дома со следующими характеристиками: • МАТЕРИАЛ СТЕН: кирпичные блоки, газосиликатный блок, каркасные стены(выйдет дешевле каменного), брус, СИП (дешевле всего) • ПЛОЩАДЬ: от 50 м² • СРОКИ: от 4 до 6 месяцев. • СТОИМОСТЬ за м² уточняйте по телефону (всё зависит от материала) (отправлю вам популярные проекты домов с ценами). Можно согласовать индивидуальный проект. Застройщик с опытом строительства более 7 лет. - Гарантия на работу 10 лет. - Аккредитован в Сбере, ВТБ, Альфе, Т-Банк, ДомРФ и др.. ПРО ИПОТЕКУ: В в тело кредита и за наличные можно включить проводку, отопление, штукатурку, стяжку, окна и двери, утепление и отделку фасада и др. Также можно включить в кредит покупку земельного участка. Кстати говоря, Подберём или найдём вам земельный участок. ИПОТЕКА ПОД 6% ДОСТУПНА: •У вас хотя бы один ребёнок до 6 лет включительно •У вас один несовершеннолетний ребёнок с инвалидностью •У вас два ребёнка и они несовершеннолетние Можете использовать материнский капитал как первоначальный взнос, который составляет 20%. • Если вы многодетная семья, то вам доступна субсидия на досрочное Код пользователя: 135128 Номер в базе: 7775664 Загородная недвижимость на улице Высотная в городе Балашов.































































