Первичная продажа
7 720 000 ₽
106 925 ₽/м²
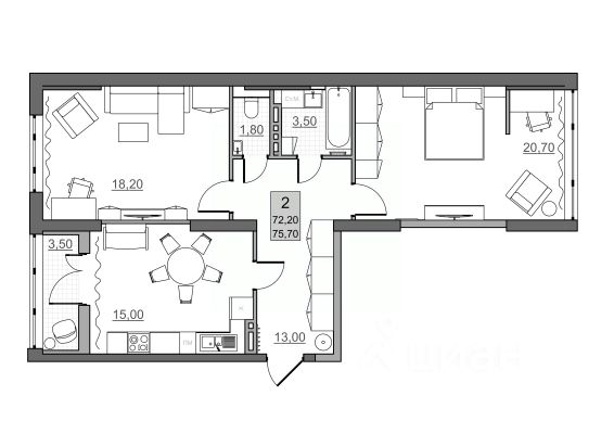
2-комнатная квартира в клубном доме "Династия"!
Идеальное пространство для удаленной работы и личного комфорта. Квартира продумана до мелочей и учитывает все потребности человека, который любит тишину и уединение.
Спальная и гостевая зоны удалены друг от друга, что позволит оставить личное пространство уединенным или отделить работу от отдыха.
Гостиная 16,6 м2 легко зонируется - вы можете как спланировать полноценную гостиную, так и превратить ее в рабочий кабинет или студию, где никто не отвлекает и ничто не мешает сосредоточиться.
Спальня 14,5 м2 с увеличенным остеклением. Здесь комфортно расположится кровать и прикроватная мебель. А также это идеальное место для туалетного столика, если вы давно мечтали о нем.
Кухня 15 м2 с выходом на увеличенную лоджию 3,5 м2. Идеальное место для паузы в работе .
Эта квартира - выбор тех, кто хочет, чтобы дом был союзником. Простор, зонирование и тишина - все на вашей стороне.
Свободная планировка. По желанию можно сделать перепланировку, подстроив квартиру под себя (требуется согласование с БТИ).
Квартира продается базово без отделки. Вы можете заказать отделку от застройщика: white box (выполнены все черновые работы) или чистовая отделка. Стоимость отделки можно включить в ипотеку!
Подъезды выполнены по дизайн-проекту. Современная отделка, бесшумные скоростные лифты. Предусмотрена установка всей необходимой навигации в подъезде. На первом этаже расположены велосипедная и колясочная, доступ к которой имеют только жители дома, а также гостевой холл с мягкой зоной ожидания.
Придомовая территория разработана в концепции двор без машин, это позволит спокойно и безопасно отдохнуть или погулять с детьми на свежем воздухе. Во дворе детские и спортивные площадки с безопасным покрытием. Со стороны улицы Волжской будет организована просторная парковочная зона: 1 машиноместо на 1 квартиру.
Своя управляющая компания! Охватываем все возможные направления работ по уходу за территорией и домом: уборка в местах общего пользования, ухаживание за растениями и зелеными зонами, обслуживание лифтового оборудования и т.д. Собственное приложение для отправки данных по счетчикам и формирование заявок о необходимых работах по дому. Следите за выполнением!
Сроки сдачи дома - IV квартал 2028 года.
Клубный дом "Династия" расположен на пересечении улиц Щорса и Комарова. Территория с уже сформированной и развитой инфраструктурой, где все рядом. Это не просто удачное местоположение - это логика удобства и уверенности в завтрашнем дне. В шаговой доступности находится детский сад, школа, СПА-центр и ТЦ Оранж.
Возможна покупка в ипотеку! Объект аккредитован во всех ведущих банках страны. Наш ипотечный брокер совершенно бесплатно подберет наиболее выгодную для вас ипотечную программу с комфортными ежемесячными платежами. Вы можете оформить сделку под ключ - мы поможем с оформлением всех документов, в течении всей сделки и до получения ключей ваш будет курировать личный менеджер, который ответит на любые ваши вопросы.
Ждем вас в нашем офисе пр










































































