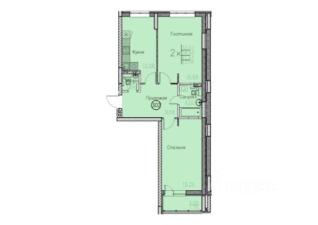
101 000 ₽/м²
Звоните в наш отдел продаж в рабочее время ПН-ПТ: с 8:00 до 17:00; СБ: с 10:00 до 14:00 ВС: Выходной** Квартал "Новый город"** — это уникальный проект для нашего региона, который станет новым украшением Энгельса. Квартал представляет собой разноуровневую застройку: современные дизайны фасадов, функциональные планировки, лаконичные формы, яркие акценты, продуманное благоустройство и особенность квартала единое пространство, где есть всё для счастливой жизни. Концепция застройки "город в городе" здесь есть всё для полноценной жизни: современные и надежные дома, детские сады, школа, взрослая и детская поликлиники, зеленые дворы-парки, удобные многоуровневые и наземные парковки, спортивные и детские площадки. Житель квартала может почувствовать себя жителем небольшого яркого, современного городка, где высоко ценятся безопасность, уют и комфорт — это всё возможно в Новом городе! Новый город там, где: Самый масштабный строящийся жилой квартал в регионе Современный дизайн фасадов с панорамным остеклением Площадь застройки более 18 Га Двор без машин Безбарьерный вход и территория Двор-парк с площадками для детей любого возраста Площадь озеленения во всем квартале более 4 Га Ландшафтный дизайн Видеонаблюдение и огражденная территория Помещение для колясок и спортивного инвентаря Санузел и Душевой уголок для собаки


























































