118 108 ₽/м²
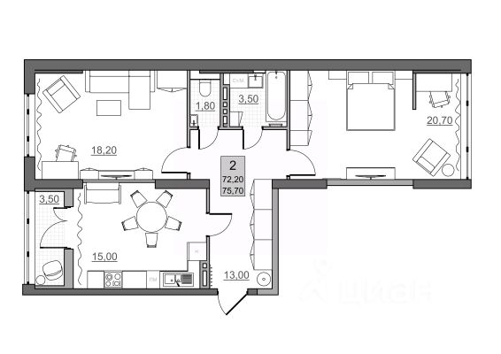
Клубный дом "Династия" — это новый стандарт жизни в Балаково: спокойный, продуманный, уютный. Он расположен в центре активной городской жизни — на пересечении улиц Щорса и Комарова. Комплекс включает один дом с десятью корпусами, и первым в продажу выходят корпуса Г, Д и Е — с фасадами на улицы Щорса и Волжская. Десятиэтажный дом с крышной котельной. Фасады дома выполнены в светлой палитре с шоколадно-кофейными акцентами, дополненные тёмными оконными рамами и увеличенным остеклением — для максимума естественного света. Места общего пользования оформлены по индивидуальному дизайн-проекту: сквозные входы, мягкие зоны ожидания, зеркала, искусственные растения и современная навигация. Для вашего удобства мы предусмотрели колясочные и велосипедные на первых этажах. В квартирах — свободные планировки, включая варианты с мастер-спальнями, двумя санузлами и отдельными гардеробными. Придомовая территория разработана в концепции двор без машин, это позволит спокойно и безопасно отдохнуть или погулять с детьми на свежем воздухе. Во дворе детские и спортивные площадки с безопасным покрытием. Со стороны улицы Волжской будет организована просторная парковочная зона: 1 машиноместо на 1 квартиру.
























































































