


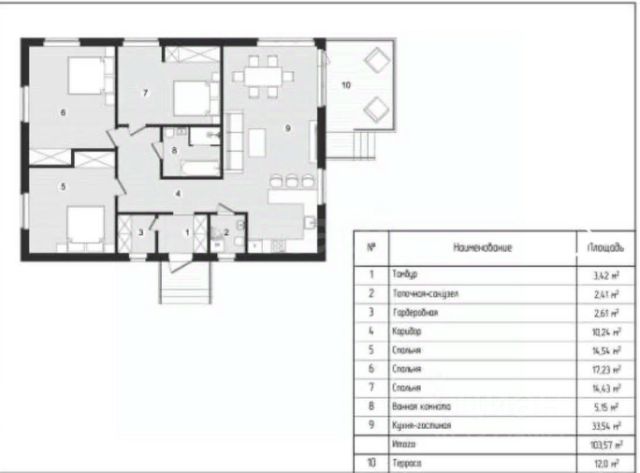
Продаётся дом в тихом, спокойном месте со свежим воздухом. Посёлок находится на границе Гагаринского и Волжского районов, рядом с п.Юбилейный. Посёлок оснащён освещением, видеонаблюдением, высокоскоростным интернетом. Дом продается со всеми коммуникациями: свет, газ, вода, выгребная яма ( 3 кольца по 1,5м ). Черновая отделка. Дом построен из двойного керамического камня плюс облицовочный керамический кирпич. Фундамент- бетон М300 со встроенной арматурой 12мм, глубина траншеи 1800мм. Цоколь из полнотелого красного кирпича, в высшей точке минимум 7 рядов. Плиты перекрытия железобетонные 220мм. Кровля из металлочерепицы каскад. Стропильная система обработана огне-био защитой. Энергосберегающие окна с закалённым безопасным стеклом, ламинацией и тонировкой. СНТ Ривьера прекрасный вариант для тех, кто ищет спокойную и комфортную жизнь за городом, не отказываясь от городских удобств. Продажа от застройщика. ПОДХОДИТ ПОД СЕМЕЙНУЮ ИПОТЕКУ 6%













































































