Первичная продажа
сдача ГК: 4 кв. 2027 года
8 273 000 ₽
108 003 ₽/м²
Живите по своим правилам в доме комфорт-класса!
Эко-квартал Булгаковский парк входит в топ-5 федерального экспертного рейтинга по потребительским качествам. Дважды занимал призовые места в конкурсе Лучший ТОП ЖК от ЕРЗ.
Просторная квартира, которая идеально подойдет для семьи с двумя детьми, пары с потребностью в домашнем кабинете или тех, кто ценит зонированное пространство и максимум комфорта.
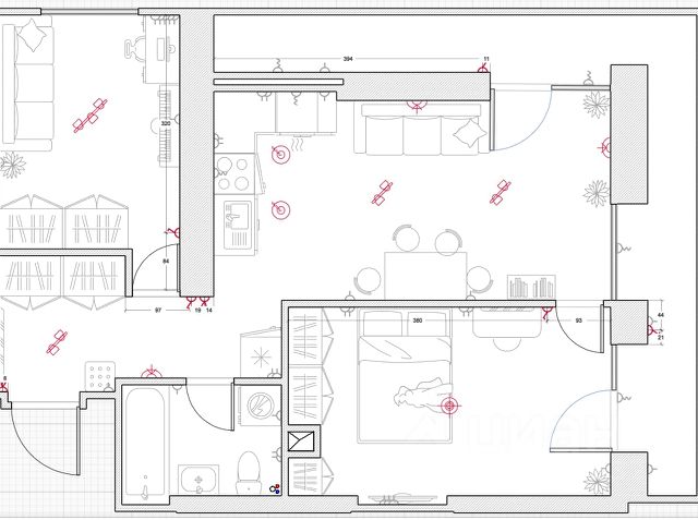
Центром квартиры является гостиная 16,3 м2, которая легко вмещает в себе все необходимое для комфортного отдыха и веселых вечеров в кругу семьи, оставаясь светлой и открытый благодаря остекленной лоджии 6,2 м2. Кухня 11,3 м2 эргономично продумана: есть место под кухонный гарнитур, обеденный стол и холодильник. Удачное расположение рядом с входной зоной позволяет разгрузить прихожу от бытовых функций, а второй выход на лоджию позволит организовать там собственный зимний сад или домашний огород. Обе спальни расположены в глубине квартиры, благодаря чему вы всегда сможете сохранить приватность. Для комфортного проживания семей с детьми мы добавили в планировку мастер-спальню - идеальное решение для тех, кто хочет собираться утром без лишней суеты и очереди в ванную. Вторая жилая комната 14 м2 может служить детской, гостевой или кабинетом. Пространства хватит для кровати, письменного стола и стеллажей. Компактная, но функциональная отдельная гардеробная рядом с гостиной - отличное место для сезонных вещей, чемоданов или спортивного инвентаря, которая позволяет освободить прихожую от громоздких шкафов. Большой коридор связывает все помещения и обеспечивает плавную навигацию по квартире.
Свободная планировка - вы можете перепланировать (требуется согласование с БТИ) и адаптировать квартиру под нужды семьи (при необходимости - объединение комнат, изменение формата кухни и так далее).
Квартира продается базово без отделки. Вы можете заказать отделку от застройщика: white box (выполнены все черновые работы) или чистовая отделка. Стоимость отделки можно включить в ипотеку!
Крышная котельная обеспечит горячей водой и комфортной температурой в квартире круглый год.
Подъезды выполнены по дизайн-проекту. Современная отделка, бесшумные скоростные лифты. Предусмотрена установка всей необходимой навигации в подъезде. На первом этаже расположены велосипедная и колясочная, доступ к которой имеют только жители дома.
Предусмотрено огороженная территория, установка умной домофонии (видеовызовы, история вызовов, вход без ключа, удаленный доступ из приложения). Современные спортивные ворк-аут зоны и детские площадки с безопасным покрытием во дворе.
Своя управляющая компания! Охватываем все возможные направления работ по уходу за территорией и домом: уборка в местах общего пользования, ухаживание за растениями и зелеными зонами, обслуживание лифтового оборудования и т.д. Собственное приложение для отправки данных по счетчикам и формирование заявок о необходимых работах по дому. Следите за выполнением!
Сроки сдачи дома - IV квартал 2027 года.
Эко-квартал Булгаковский Парк располож Продается 3-комнатная квартира в монолитном доме в Саратовской области.

























































































