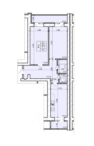
Продаётся 2-комнатная квартира в сданном доме (Дом 85), срок сдачи: IV-кв. 2019, общей площадью 61.8 кв.м., на 7 этаже. Жилой комплекс "Ладья" - двухсекционный 25-этажный дом, построенный по монолитно-кирпичной технологии. Традиционно, квартиры сдаются со свободной планировкой и без отделки. Вы сами создаете комфортное для себя жизненное пространство. Благодаря высокой энергоэффективности дома, в квартирах всегда тепло, при этом расходы на теплоснабжение снижаются за счет сокращения теплопотерь. Проект предусматривает собственные крышные котельные.
Комфортная жизнь - это не только тепло и тишина в квартире. Это понятие включает в себя много составляющих, в том числе, и окружающую среду. Для реализации этого каждый проект компании "Шэлдом" включает в себя обустройство придомовых территорий. ЖК "Ладья" не станет исключением.
В проекте предусмотрено обустройство удобных подъездных дорог к домам с освещением в темное время суток. Для жильцов будут оборудованы площадки для отдыха, а для малышей - детская и спортивная площадка с травмобезопасным покрытием из резиновой крошки, игровым и спортивным оборудованием. Придомовая территория будет озеленена, разбиты газоны и цветники, высажены декоративные кустарники.
Жилой комплекс находится в г. Энгельс, в экологически чистом районе. В малых городах есть своя неповторимая атмосфера. С одной стороны, здесь есть социальные и инфраструктурные объекты, присущие городской среде. С другой стороны, жизнь здесь течет медленнее, чем в мегаполисах.
Выбрав квартиру в "Ладье", вы полностью ощутите эту особенность небольших городков. Практически в шаговой доступности от дома находится хорошо оборудованный пляж, а из окон будут открываться живописные виды на Волгу. Достаточно немного пройти по улице, чтобы оказаться на берегу великой русской реки, отвлечься от привычной ежедневной суеты и насладиться тишиной и спокойным течением вод.
Рядом с жилым комплексом находится вся необходимая социальная инфраструктура. Есть магазины, салоны красоты, фитнес-центры. В 10 минутах от дома расположена школа 19, детский сад "Жемчужинка", в шаговой доступности - медицинский колледж.
Остановки общественного транспорта расположены рядом с домом, поэтому без труда можно добраться в любую часть города. На общественном транспорте можно быстро доехать до супермаркета "Семейный", 2-ой городской больницы, медицинского центра "Новый век".
Энгельс расположен недалеко от Саратова, а вблизи жилого комплекса проходит объездная дорога. Транспортная ситуация хорошая, пробок практически не бывает, поэтому жилье в "Ладье" можно рассматривать и тем, кто работает в Саратове, но хочет жить в спокойном, тихом и экологически чистом городе. На собственном транспорте от "Ладьи" до Саратова можно добраться за 25 минут, на автобусе или маршрутке дорога займет чуть больше часа.