64 846 ₽/м²
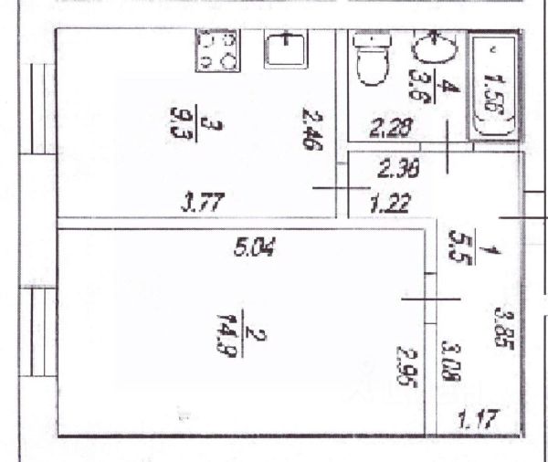
Продается уютная однокомнатная квартира площадью 29.3 кв. м на первом этаже пятиэтажного панельного дома, построенного в 1972 году. Жилая площадь составляет 15.8 кв. м, а кухня — кв. м, что позволяет комфортно разместить всю необходимую мебель и технику. В квартире выполнен современный евроремонт: свежие обои, качественный ламинат, натяжные потолки. Просторная кухня оборудована всем необходимым для удобного приготовления пищи. Санузел совмещенный, оформлен в светлых тонах, установлена новая сантехника. Окна выходят на улицу, поэтому в квартире всегда светло. Дом находится в хорошем состоянии, регулярно проводится обслуживание. Для вашего удобства предусмотрена наземная парковка. Удобный пандус у подъезда делает дом доступным для всех категорий граждан. В пешей доступности от дома находятся магазины, где можно приобрести все необходимое для комфортной жизни. Удобное транспортное сообщение позволяет быстро добраться до ближайших остановок общественного транспорта. Продажа квартиры осуществляется без посредников и дополнительных комиссий, что делает сделку максимально прозрачной и выгодной для покупателя. Документы готовы к сделке, обременений нет. Приглашаем на просмотр! Это отличная возможность приобрести комфортное жилье по привлекательной цене. Звоните и записывайтесь на удобное для вас время. РЕМОНТ ЕЩЕ ДЕЛАЕТСЯ ПОЧТИ ДО ДЕЛАЛИ 1-комнатная квартира в Вольске.




















































































