Мы используем куки-файлы. Соглашение об использовании
С мебелью

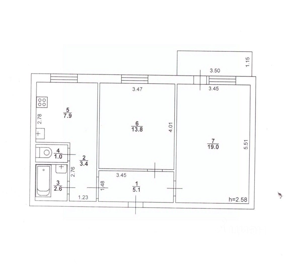
Продается 2-комн. квартира, 52,8 м²

Общая площадь52,8 м²
Жилая площадь32,8 м²
Площадь кухни7,9 м²
Этаж2 из 5
Год постройки1989
Номер объекта: 537306. Звоните прямо сейчас и узнайте подробности о данном жилье! Квартира вторичка, 2 комнаты на втором этаже 5-этажного дома площадью 52.80 кв.м. - это модный и презентабельный вариант для тех, кто ценит современный стиль и комфорт. Тут проведен капитальный ремонт, остекление окон выполнено с защитой от солнца и вы сможете наслаждаться каждым моментом вашей жизни в этом элитном объекте недвижимости. Уютная квартира с изолированными комнатами, балконом и удобным вторым этажом. Развитая инфраструктура в районе, где расположено жилье, позволит вам с легкостью добраться до школы 6, детского садика и других учреждений. В квартире установлены счетчики на воду. Мебель останется по договоренности. Так же в квартире установлены и останутся новым владельцам водонагреватель и кондиционер. Это идеальный вариант для семей с детьми, молодых людей, инвесторов, родителей или пожилых родственников. Благодаря удобному расположению и хорошему состоянию квартиры, вы сможете здесь чувствовать себя как дома. Ипотека и материнский капитал подходят для покупки данного жилья. Не упустите возможность стать обладателем данного уникального жилья! Звоните нам прямо сейчас и мы поможем вам узнать больше о данном предложении. Ваш новый дом уже ждет вас!
Позвоните автору
Вам ответят на все вопросы

О квартире

Тип жилья

Вторичка

Общая площадь

52,8 м²

Жилая площадь

32,8 м²

Площадь кухни

7,9 м²

Высота потолков

2,6 м

Санузел

1 раздельный

Балкон/лоджия

1 балкон

Вид из окон

На улицу и двор

Ремонт

Косметический

Продаётся с мебелью

Да

О доме

Год постройки

1989

Тип дома

Панельный

Тип перекрытий

Железобетонные

Подъезды

3

Парковка

Наземная

Отопление

Центральное

Аварийность

Нет

Газоснабжение

Центральное

Спросите умного помощника
Получите экспертное мнение о жилье

Расположение

Ипотечный калькулятор
  • Базовая
  • Семейная
  • ИТ-ипотека
  • 20%
  • 30%
  • 40%
  • 50%
лет
  • 10 лет
  • 20 лет
  • 30 лет
Загружаем предложения от застройщика и банков
Помощь риелтора
Проверенный риелтор поможет купить или продать квартиру
5 000 000 ₽
Цена за метр
94 697 ₽/м²
Условия сделки
свободная продажа
Ипотека
возможна
Документы проверены