Мы используем куки-файлы. Соглашение об использовании
Только на Циан

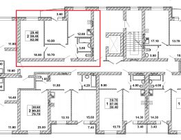
Продается 2-комн. квартира, 62 м²

Общая площадь62 м²
Этаж4 из 8
Год сдачи2025
ДомСдан
ОтделкаБез отделки
Дом сдан. Жилой дом расположен в центре 1-го Жилучастка с хорошо развитой инфраструктурой. В шаговой доступности находятся: стадион Волга, лицей 15, детский сад комбинированного вида 227, городская поликлиника 6, а также сквер имени А.И. Кривохижина. 1-подъездный 8-этажный жилой дом рассчитан на 55 квартир по 7 квартир на этаже: однокомнатные квартиры площадью 50 кв.м, двухкомнатные квартиры площадью 62, 64, 68 и 76 кв.м, трехкомнатные квартиры площадью 84 и 110 кв.м. Жилой дом возводиться с использованием современных материалов, отвечающим основным требованиям безопасности и энергосбережения, что является гарантом качества и комфорта. Экологичность, прочность, долговечность и эстетичность основные критерии, которыми мы руководствуемся в строительстве. Наружные стены сделаны из силикатного кирпича с наружным эффективным утеплением плитами из минеральной ваты Технофас Оптима толщиной 110 мм по системе Ceresit WM. Для создания акцентов на фасадах жилого дома предусмотрены декоративные элементы из утеплителя и остекление лоджий и балконов. На территории жилого дома предусмотрены парковочные места, детская площадка, а также зоны отдыха для детей и взрослых. Современный ландшафтный дизайн с озеленением и освещением всех зон домового участка нацелен на создание стиля и уюта.
Позвоните автору
Вам ответят на все вопросы

О квартире

Тип жилья

Новостройка

Общая площадь

62 м²

Санузел

1 раздельный

Балкон/лоджия

1 лоджия

Вид из окон

Во двор

О доме

Количество лифтов

1 грузовой

Тип дома

Кирпичный

Расположение

Ипотечный калькулятор
  • Базовая
  • Семейная
  • ИТ-ипотека
  • 20%
  • 30%
  • 40%
  • 50%
лет
  • 10 лет
  • 20 лет
  • 30 лет
Загружаем предложения от застройщика и банков
Помощь риелтора
Проверенный риелтор поможет купить или продать квартиру
Автор объявления
ID 55805775
  • Документы проверены
  • 5 лет 9 месяцев на Циане
  • 6 820 000 ₽
    Цена за метр
    110 000 ₽/м²
    Условия сделки
    переуступка
    Ипотека
    возможна
    Автор объявления
    ID 55805775
    Документы проверены