Мы используем куки-файлы. Соглашение об использовании
Площадь250 м²
Этаж1 из 1
ПомещениеСвободно
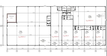
Предлагаем помещения 250 кв.м. в новом торговом комплексе общей площадью 1400 кв м., по адресу ул. Танкистов,100г. Торговый комплекс находится на первой линии, большие панорамные окна, своя котельная, парковка. Электрическая мощность 150 квт. Торговый комплекс сдан, открылись: Магнит, КЕГА, магазин "Солянка", аптека, магазин фурнитуры. Осталось одно помещение 250 кв.м., отдельный вход с торца, хорошо виден по движению дороги, разрузка со двора.
lock

Войдите или зарегистрируйтесь
для просмотра информации

Просматривайте условия сделки и всю информацию об объекте
Сохраняйте фильтры в поиске и не вводите заново
Доступ к избранному с любого устройства
Неограниченное добавление в избранное
Позвоните автору
Вам ответят на все вопросы
Остались вопросы по объявлению?
Позвоните владельцу объявления и уточните необходимую информацию.
  • Инфраструктура
  • Похожие рядом
  • Тип зданияОтдельно стоящее здание
  • Площадь участка0 га
  • Общая площадь1 400 м²
  • Статус участкаВ собственности
Приточная вентиляция
Автономное отопление
Помощь надёжных риелторов
Риелтор партнёр Циан поможет купить или продать любую недвижимость
Агентство недвижимости
Документы проверены
250 000 ₽/мес.

Прямая аренда (от года), минимальный срок аренды 11 месяцев, доступны арендные каникулы, предоплата за 1 месяц

3 287 $/мес.
2 789 /мес.
Цена за метр
12 000 ₽ в год
Налог
УСН
Комиссия
3%
Коммунальные платежи
не включены
Эксплуатационные расходы
не включены
Агентство недвижимости
Документы проверены
На Циан
8 лет
Объектов в работе
17