118 473 ₽/м²
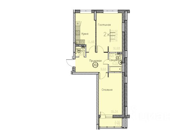
Просторная 1-комнатная квартира в монолитном доме! Отличный вариант для активных граждан. Просторная кухня 18,90 м2 вместит в себя всю необходимую технику и мебель, а также позволит выделить даже зону для гостей и отдыха, сделав полноценную кухню-гостиную! Большая спальня 14 м2 с выходом на остекленную лоджию. Благодаря увеличенному остеклению в квартире будет много света. В прихожей предусмотрена специальная ниша, где вы можете организовать шкаф для хранения вещей. Свободная планировка. По желанию можно сделать перепланировку, подстроив квартиру под себя (требуется согласование с БТИ). Квартира продается базово без отделки. Вы можете заказать отделку от застройщика: white box (выполнены все черновые работы) или чистовая отделка. Стоимость отделки можно включить в ипотеку! Крышная котельная обеспечит горячей водой и комфортной температурой в квартире круглый год. Подъезды выполнены по дизайн-проекту. Современная отделка, бесшумные скоростные лифты. Предусмотрена установка всей необходимой навигации в подъезде. На первом этаже расположены велосипедная и колясочная, доступ к которой имеют только жители дома. Предусмотрено огороженная территория, установка умной домофонии (видеовызовы, история вызовов, вход без ключа, удаленный доступ из приложения). Современные спортивные ворк-аут зоны и детские площадки с безопасным покрытием во дворе. Своя управляющая компания! Охватываем все возможные направления работ по уходу за территорией и домом: уборка в местах общего пользования, ухаживание за растениями и зелеными зонами, обслуживание лифтового оборудования и т.д. Собственное приложение для отправки данных по счетчикам и формирование заявок о необходимых работах по дому. Следите за выполнением! Сроки сдачи дома - IV квартал 2025 года. Эко-квартал Булгаковский Парк расположен в районе Саратовского Ипподрома. Рядом строится современная школа, уже построены детский сад и поликлиника. На первых этажах располагаются коммерческие помещения: магазины, пункты выдачи, салоны красоты и т.д. Хорошая транспортная развязка: рядом находится транспортный центр Ленинского района - кольцо 3-й Дачной. В 10 минутах езды находятся стадион Сокол, торговые центры Тау Галерея и Сиеста, ДК Россия, продуктовый рынок. Возможна покупка в ипотеку! Объект аккредитован во всех ведущих банках страны. Наш ипотечный брокер совершенно бесплатно подберет наиболее выгодную для вас ипотечную программу с комфортными ежемесячными платежами. Вы можете оформить сделку под ключ - мы поможем с оформлением всех документов, в течении всей сделки и до получения ключей ваш будет курировать личный менеджер, который ответит на любые ваши вопросы. Ждем вас в нашем офисе продаж!






























































